Boletín Oficial de la Comunidad de Madrid - Núm 147
Fecha del Boletín
22-06-2021
Sección 3.10.20C: III. ADMINISTRACIÓN LOCAL AYUNTAMIENTOS
Código de Verificación Electrónica (CVE): BOCM-20210622-66
Páginas: 368
III. ADMINISTRACIÓN LOCAL
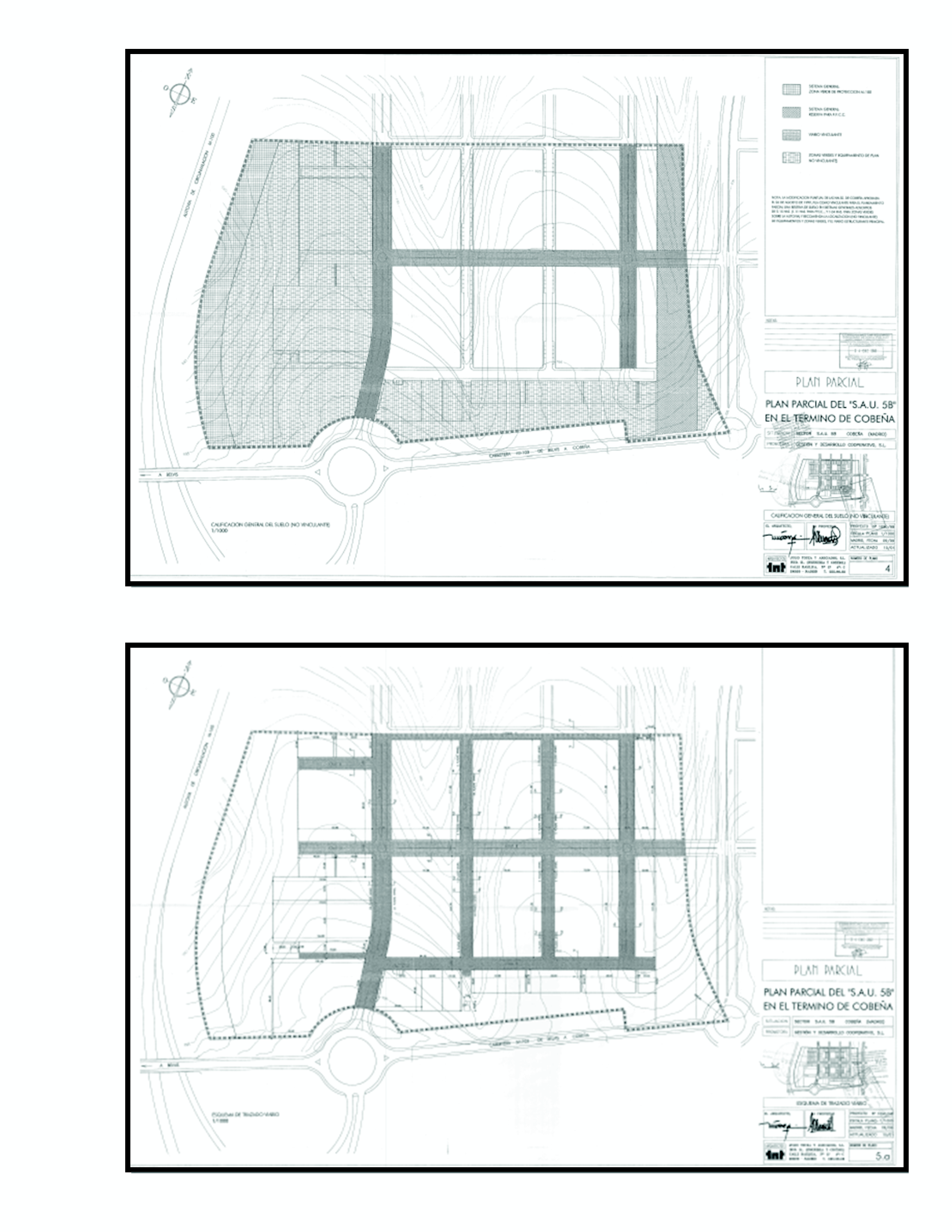
AYUNTAMIENTO DE COBEÑA
URBANISMO
66
Cobeña. Urbanismo. Normas subsidiarias
Nota: El contenido del texto de la disposición que aquí se muestra no es necesariamente exacto y completo. Únicamente la disposición publicada con firma electrónica, en formato PDF, tiene carácter auténtico y validez oficial.

