Boletín Oficial de la Comunidad de Madrid - Núm 183

Fecha del Boletín 
03-08-2021

Sección 3.10.20T: III. ADMINISTRACIÓN LOCAL AYUNTAMIENTOS


Código de Verificación Electrónica (CVE): BOCM-20210803-68

Páginas: 19


III. ADMINISTRACIÓN LOCAL

AYUNTAMIENTO DE TORRELODONES

URBANISMO

68
Torrelodones. Urbanismo. Plan especial

Mediante acuerdo del Pleno de fecha 23 de febrero de 2021, se aprobó definitivamente el Plan Especial de ordenación de la Unidad de Ejecución n.o 1 “Villa Rosita”. De conformidad a lo establecido en el artículo 66 de la Ley 9/2001, de 17 de julio del Suelo de la Comunidad de Madrid y en el artículo 70.2 de la Ley 7/1985, de 2 de abril, Reguladora de las Bases de Régimen Local, se procede mediante el presente anuncio a la publicación de la justificación del Plan Especial, así como de la normativa particular de las nuevas parcelas y planos normativos.

Dicho documento se ha remitido a la Consejería de Medio Ambiente, Ordenación del Territorio y Sostenibilidad a través de la sede electrónica con registro nº 10/132734.9/21, en virtud de lo establecido en el art. 65 de la Ley 9/2001, de 17 de julio del Suelo de la Comunidad de Madrid.

Justificación del Plan Especial:

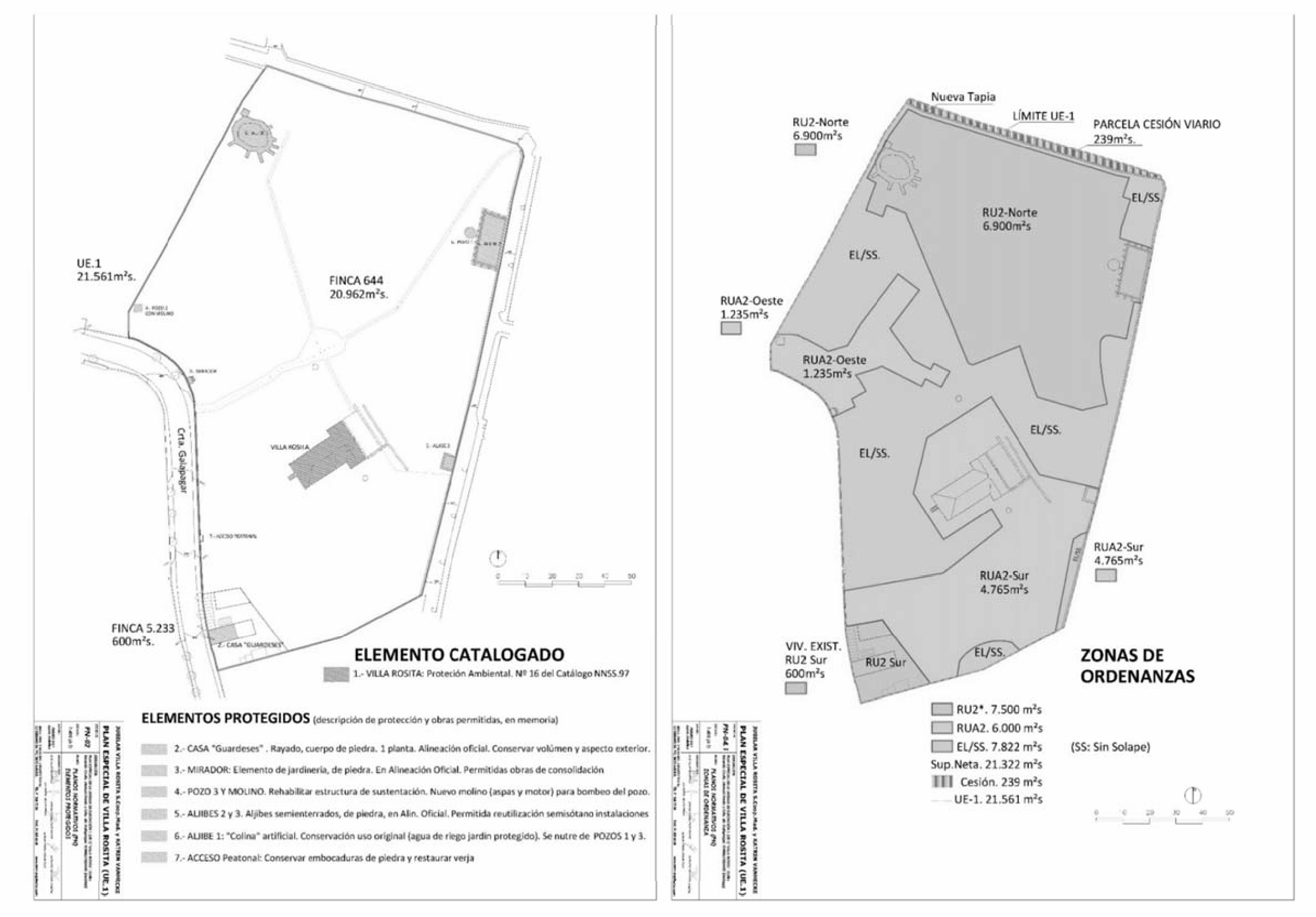
El Plan Especial Unidad de Ejecución 1 (UE-1), es el instrumento de desarrollo establecido en las vigentes Normas Subsidiarias de 1997 de Torrelodones, de Aprobación Definitiva por Acuerdo del 16 de octubre de 1997, publicadas en el BOLETÍN OFICIAL DE LA COMUNIDAD DE MADRID de 5 de diciembre de 1997 (suplemento nº 287), y posteriores correcciones y modificaciones, y tiene por objeto ordenar y dar cumplimiento a las determinaciones que establece su FICHA vigente, según su redacción aprobada el 16 de noviembre de 2009. Según el Art. 8.2.1.B.1. de las NNSS / 97, se trata de un Área Especial/UE*, que “no constituyen en realidad unidades de gestión en sentido estricto, sino que se consideran ámbitos en los que la concesión de licencias está precedida de determinadas actuaciones, utilizando en su caso la figura de planeamiento adecuada al tipo de problema que cada una representa”, siendo en este caso el Plan Especial, para ordenar la parcela y proteger sus elementos catalogados.

Este Plan Especial tiene por principal objetivo proteger dos elementos catalogados: el edificio “Villa Rosita” y el Jardín.

“Villa Rosita”, el edificio catalogado, data, según Catastro, de 1934. Es un edificio que se encuentra en pie y “okupado” por varias familias. Tiene dos ventanas balconeras cegadas, y alguna ampliación adosada posterior a su construcción, de escaso valor, que perjudica el conjunto, y que no están catalogadas.

El Jardín actual cuenta con arbolado abundante y de gran interés. Son especialmente protegibles las encinas, enebros y pinos de gran porte. También se han catalogado los ejemplares perjudiciales, que finalmente deberán ser apeados, como las especies invasivas alóctonas (ailantos y otros arbustos), y los árboles enfermos o muertos (pinos dominados, almendros con gomosis, olmos con grafiosis…) para evitar plagas. Solo hay 5 ejemplares de lodones (almez), por lo que, de ser correcta la mención de la Ficha a esta especie, muchos han desaparecido desde 1996.

Además del arbolado, se conserva alguna construcción vinculada a los jardines. Destacan tres aljibes, dos de ellos asociados a sendos pozos, y un molino de viento que se destinó a extraer agua de uno de ellos para llenar el aljibe Noroeste.

Como es lógico, la Ficha UE-1 no establece con precisión la posición del arbolado a proteger. Para asegurar que las futuras edificaciones se adapten a él (y no al contrario), la Ficha propone una ordenación flexible, con dos Ordenanzas residenciales (RU2* y RUA2), con diferentes condiciones de aprovechamiento (máximos para RU2*, y mínimos para RUA2), y la posibilidad de solapar la ordenanza de espacios libres (EL/) con las anteriores.

NORMATIVA PARTICULAR DE LAS NUEVAS PARCELAS

Parcela 3. Nueva. Finca 5.233 “Guardeses”. Residencial RU.2.

Esta finca no sufre ninguna alteración respecto a su actual situación. Sólo queda afectada por la Ordenanza RU2, ya que no cuenta con ningún elemento catalogado ni de edificación ni de espacios libres.

Art. 4.3. “Uso residencial”.

Parcela 2. Nueva. Segregada de Finca 644.

Centro Educativo Montessori para adolescentes.

Residencial RUA.2 o uso compatible. EC.12 “Villa Rosita”.

Esta parcela se va a destinar, en principio, a Uso Compatible Dotacional. Si se destinase a vivienda, se aplicaría la normativa de uso Residencial RUA.2.

Elementos protegidos por su valor ambiental

Como consecuencia de los artículos mencionados del capítulo 7, se desarrolla esta normativa pormenorizada de protección del elemento número 16 del catálogo edificio Villa Rosita, y memoria de elementos protegidos por su valor ambiental, y de las obras autorizadas en ellos.

Memoria pormenorizada de normativa de protección de Villa Rosita

El presente Plan Especial regula las condiciones generales para la rehabilitación del edificio “Villa Rosita”, calificado con Protección Ambiental (Grado 3.o), entendiendo que la pormenorización de las obras corresponde al proyecto para solicitar la licencia de obras.

Por tanto, según señalan las vigentes NNSS / 97, (Art. 7.4.8, A1, B1 y C1), las obras que se efectúen en el edificio tendrán por objeto adecuarlo a los usos y costumbres actuales, en este caso, adaptarlo para un Uso Dotacional, sin pérdida de los valores ambientales y tipológicos que posee, conservando y poniéndolos en valor, y mejorando sus condiciones de habitabilidad o uso, manteniendo su configuración estructural, su envolvente exterior y sus elementos significativos.

Las obras permitidas para ese edificio (Art. 7.4.7 y 7.4.8, A, B y C1) son las de reestructuración, mantenimiento, consolidación, recuperación y acondicionamiento. Dentro de las obras permitidas, están incluidas las de demolición de aquellas partes del edificio que no se consideran significativas y de obligada conservación (Art. 7.4.7.G.1).

Demoliciones permitidas

1. Cuerpo añadido en fachada Noroeste (ver fotos y descripción gráfica y escrita), de unos 30 m²c de superficie y altura escasa (por debajo de la altura mínima permitida), añadidos con fecha desconocida. Son de muros de piedra y cubierta de fibrocemento. Su suelo encuentra al nivel del jardín, es decir, por debajo del nivel general de la planta. A diferencia del cuerpo protegido, este añadido no tiene forjado sanitario, sino con una solera pobremente ejecutada, hoy casi desaparecida por la erosión y el abandono.

Este cuerpo, a un solo agua, se llevó a cabo contra la fachada correspondiente al baño, cegando la ventana de éste. Esa ventana puede recuperase en su posición original. Sube la pendiente de su cubierta hasta una altura tal que permite la apertura de una nueva ventana alta que ilumina el actual baño, hueco de proporción dimensiones no relacionadas con la edificación original, justo sobre la cumbrera de la edificación adosada, y que utiliza como dintel el propio durmiente de la estructura de la cubierta.

No solo carece de valor arquitectónico o funcional, sino que afea y desdibujan la volumetría del edificio principal. Este cuerpo que se autoriza demoler está fuera de ordenación catalogada en la Ficha, que señala como elemento a conservar (rayado en rojo) solo el edificio principal, con sus dos naves perpendiculares libres de elementos añadidos.

2. Reapertura de ventanas balconeras originales. En la fachada Norte y Sur se cegaron, en fecha desconocida, dos ventanas balconeras, que este P.E. permite reabrir.

3. Distribución interior del cuerpo principal, de doble crujía. Se permite asimismo la demolición de la tabiquería del cuerpo principal, consistente en un pasillo en su eje longitudinal NE-SO, con piezas a ambos lados. Esta distribución no puede considerarse “tipológica”.

La nueva distribución no obstante seguirá estando sujeta a un esquema de circulación longitudinal NE-SO. Asimismo, conservará el apoyo longitudinal, ya sea adintelado (pilares y vigas de madera) o mediante muro de carga.

4. Aperturas en el muro de carga central. La demolición de las distribuciones habrá de respetar la distribución de cargas de la cubierta de dicho cuerpo principal, por la que cada faldón se apoya en el muro perimetral y el central, transmitiendo así sólo cargas verticales a los muros perimetrales, evitando empujes horizontales. La cumbrera se apoya en un entramado de madera, dividido a la altura del falso techo por un durmiente de madera, bajo el cual el entramado se completa con plementería de ladrillo. Este elemento vertical cuenta con aperturas para acceder a las estancias de la fachada SE. Se permite que la nueva distribución lleve a efecto nuevas aperturas en dicho muro, del tamaño que sea preciso, respetando la descrita resolución de la distribución de cargas de la cubierta.

5. Demolición de falsos techos de caña y escayola. Estos falsos techos crean una cámara bajo cubierta, no accesible, que actúa como elemento de aislamiento térmico. Los falsos techos en sí son elementos de acabado, de escayola lisa, rematados con moldura de media caña simple, sin decoración.

Sin embargo, es necesario llevar a cabo importantes reformas en la estructura de cubierta, lo que puede aprovecharse para impermeabilizarla y aislarla debidamente, haciéndose innecesaria climáticamente la cámara bajo cubierta. Esta operación permite que las estructuras de las cubiertas queden vistas y aumentar notablemente la volumetría de los espacios resultantes, adecuándose mejor a su nuevo uso dotacional. Se intentará en lo posible recuperar los elementos originales de la cubierta (vigas, correas…) como elemento didáctico para explicar su funcionamiento estructural original.

Se distinguirá así el cuerpo de doble crujía, de apoyo central, y el del cuerpo transversal, de crujía simple, de estructura atirantada.

Memoria pormenorizada de normativa de elementos protegidos por su valor ambiental

Los siguientes elementos construidos existentes en la UE1 no pueden considerarse elementos catalogados, pero tienen características ambientales como para que merezca la pena ser protegidos. Todos ellos, excepto el elemento nº 7, (puerta peatonal de acceso) se encuentran en zonas de retranqueo obligatorio, ya sea con frentes de parcela o linderos, y esta protección les preserva de ser obligatoriamente demolidos.

Esta norma establece qué valores tienen estos elementos construidos, y qué obras se permite llevar a cabo en ellos para preservar los mencionados valores. Los tipos de obras serán como se describen en el Art. 7.4.7 de las NNSS-97 vigentes.

Elemento 2. Casa “Guardeses”.

Cuerpo rectangular de una planta, construida en mampostería de piedra, y con cubierta a dos aguas de teja romana. Su muro piñón Sur está construido sobre la alineación oficial a la Carretera de Galapagar. La Norma RU2 obliga a retranquear la edificación 3m. del frente a calle.

Este edificio lleva adosado, en continuidad de su piñón Norte, una ampliación, con otra altura de cornisa y diferente material de construcción (ladrillo enfoscado, teja de hormigón), que puede demolerse.

La Casa “Guardeses” está bien conservada y da calidad ambiental a su calle. Pueden llevarse a cabo en ella las mismas obras que en un edificio catalogado como de Protección Ambiental (grado 3), conservando su volumen y empleando los mismos materiales (mampostería de granito, con recercados de sillares de una pieza y esquinas de sillar y teja romana), si bien se autoriza a rasgar los huecos verticalmente, hasta el nivel de planta baja.

Elemento 3. Mirador.

Elemento de jardinería, construido en mampostería y sillería de granito. Está construido en el frente a calle de la Carretera de Galapagar. Tenía como función asomarse sobre la tapia que cierra el conjunto y contemplar las vistas lejanas y sobre el valle del Guadarrama. Hoy en día construcciones y arbolado existentes al otro lado de la Crta. de Galapagar no permiten esas vistas sobre el valle.

Se propone su conservación por ser un elemento del Jardín Protegido. Desde la calle no se advierte su presencia, al emerger sobre la tapia de cierre sólo una barandilla de barrotes verticales, muy transparente.

Pueden llevarse a cabo en ella las mismas obras que en un edificio catalogado como de Protección Ambiental (grado 3). La plataforma del mirador presenta un ligero hundimiento, que indica que el relleno ha podido lavarse en parte. Se recomienda comprobar su seguridad, así como asegurar el buen anclaje de sus barandillas.

Elemento 4. Pozo 3 y molino.

Este Pozo 3 se utilizaba para riego de la parcela. El molino de viento bombeaba el agua hasta el Aljibe 1. El molino consta de una estructura piramidal de cuatro caras, de perfiles de acero laminado de diversa sección, que en su parte superior cuenta con una plataforma de mantenimiento con barandilla, anterior al último tramo de la estructura que llega hasta el eje del molino. El sistema de aspas está muy deteriorado y no es recuperable.

Este molino y el pozo están en zona de retranqueo a linderos. Pueden llevarse a cabo en este elemento el tipo de obras que en un edificio catalogado como de Protección Ambiental (grado 3).

Parece factible llevar a cabo la consolidación de la estructura portante, aunque hay que estudiar su compatibilidad con el crecimiento de un almez de buen porte que está junto al pozo.

En caso de decidir ponerlo de nuevo en funcionamiento, se permite la sustitución del aerogenerador, sistema de bombeo, motorización y transmisión, por elementos modernos.

Se propone su conservación y puesta en funcionamiento, siempre que su deterioro no sea incompatible con la seguridad, por ser elementos (el molino y el pozo) que ayudan a comprender el mantenimiento del jardín catalogado, objeto de protección, y a su riego.

Elemento 5. Aljibes 2 y 3.

Aljibes semienterrados, de piedra, en zona de retranqueo de C/ Manuel Pardo.

El Aljibe 2 ocupa una superficie de unos 210 m2, y seguramente contaba con una cubierta a dos aguas, hoy desaparecida. El Aljibe 3 ocupa tan solo unos 25 m2.

Ambos están construidos en mampostería y sillería de granito. El Aljibe 2 emerge sobre el terreno cerca de 1,5m., en todo su perímetro, mientas que el Aljibe 3 fue encajado contra un afloramiento rocoso y cerrado por su cara Este (frente a M.Pardo), por lo que se percibe desde dicha calle como un tramo más de la tapia, y hacia el interior de la parcela como un peto bajo.

Pueden llevarse a cabo en estos elementos las mismas obras que en un edificio catalogado como de Protección Ambiental (grado 3), si bien se da libertad para llevar a cabo la cubrición que más convenga a su nuevo uso, y nuevos huecos de acceso o mantenimiento, en su caso. Se protegen por ser memoria del Jardín protegido, aunque pueden usarse como estancias para instalaciones.

Elementos 6. Aljibe 1: (“Colina” artificial). y pozo 1.

El Aljibe 1 es el mayor de Villa Rosita (fotos superiores). Tiene una capacidad de unos 200 m3, y junto con el resto de aljibes y pozos constituía el sistema de riego de los jardines. Otro pozo de menor tamaño (pozo 2, irrecuperable en la actualidad) era usado para agua potable.

El Aljibe 1 puede ser recuperado para su fin original, por encontrarse en buen estado y ser el que se encuentra en la parte de mayor altura de la parcela y, por tanto, regar por gravedad.

El Aljibe 1 se encuentra, en parte, sobre la zona de retranqueo obligatoria del lindero NW, semienterrado en la parcela. Tiene forma de riñón, y cuenta con contrafuertes de granito, de gran tamaño en su cara Sur. El espacio entre contrafuertes está colmatado por tierra y cubierto de vegetación, de manera que, desde el Sur, el aljibe se percibe como una colina natural del terreno, un pequeño promontorio. En la actualidad se ha derrumbado su techumbre.

El Aljibe 1 puede nutrirse del pozo 1 (foto izda.) y del Pozo 3 (bajo el molino).

Pueden llevarse a cabo en estos elementos obras como en un edificio catalogado como de Protección Ambiental (grado 3), aunque pueden cubrirse como mejor convenga y construir sobre ellos. (son elementos que quedan bajo rasante).

Se protegen para su uso como tales, por ser elementos que ayudan a comprender y a mantener el jardín objeto de protección.

7. Acceso. Peatonal.

En la Carretera de Galapagar se erige este acceso peatonal, mediante retranqueo en la tapia y embocadura de granito y dos columnas cuadradas de granito, rematadas con pináculos piramidales de base cuadrada. En la verja, sobre dos chapas está escrito, con letras en relieve, el nombre de la finca “Villa Rosita”. No cumple en cuanto su accesibilidad, al contar con 4 escalones desde la calle.

Un poco más adelante, en la misma calle, existe otro acceso de carruajes, a nivel de calle.

Pueden llevarse a cabo en este elemento las mismas obras que en un edificio catalogado como de Protección Ambiental (grado 3).

Se protege, aunque su uso como acceso no cumpla para PMR, por ser un elemento que ayuda a comprender cómo se organizaba el conjunto edilicio en su origen, como vivienda unifamiliar de una colonia de segunda residencia, y por tanto, más vinculada al tren que al pueblo.

Parcela 1. Nueva. Resto de finca matriz 644 “Jubilar Villa Rosita”.

Residencial RUA.2 y RUA.2, o uso compatible.

Esta parcela se va a destinar, en principio, a Uso Compatible Dotacional. Si se destinase a vivienda, se aplicaría la normativa de uso Residencial RU2 o RUA2 vistas en anteriores capítulos.

Parcela “Cero” (0). Nueva. Cesión viario en C/ Eduardo Costa.

Parcela 0. Cesión viario C/ Eduardo Costa.

Uso público. Vías y zonas verdes.

Propietario final: Ayuntamiento de Torrelodones.

Propietario Actual Proindiviso Propietarios Parcelas 1 y 2.

Superficie neta: 239 m2s.

Condiciones vinculantes para los proy. de urbanización

Ámbitos de los proyectos de urbanización:

— No es necesario un Proyecto de Urbanización de la totalidad del ámbito, como en una actuación sistemática, pero se requieren proyectos de urbanización de cada ámbito o zona.

— El Ámbito de los proyectos de urbanización, cuyos límites deben coincidir en principio con los límites de la parcelación indicativa del Plano PI-06, se señalan en el Plano Indicativo PI-13 “Delimitación ámbitos de proyectos urbanización/redes”. Se distinguen 4 ámbitos.

— Ámbito P0, correspondiente a la Zona de cesión a la c/ Eduardo Costa. La materialización de la cesión, física y notarialmente, será una condición previa a la aprobación del Proyecto de Segregación (complejo inmobiliario), y posterior Resolución.

— Ámbito P1. Proyecto de urbanización, en sentido estricto, correspondiente a la Zona del Jubilar en un ámbito coincidente con su parcela resultante. Exigible su aprobación previa o simultánea con el Proyecto de edificación.

— Ámbito P2. Proyecto de urbanización, en sentido estricto, correspondiente a la Zona de Escuela Montessori, en un ámbito coincidente con su parcela resultante. Exigible su aprobación previa o simultánea con el Proyecto de edificación.

— Ámbito P3. No es necesario proyecto de urbanización por ser asimilable la parcela resultante a un solar, una vez aprobada la Segregación que, en este caso, coincidir exactamente con su estado actual (finca 5.233).

— Las obras de urbanización pueden simultanearse con las de edificación, depositando un aval del 100% de las obras de urbanización.

Plazas de aparcamiento.

— Para la Parcela 1, Jubilar, el número de plazas de aparcamiento, incluida la zona de carga y descarga, es de al menos una por cada UR (29 plazas), salvo justificación de manifiesta incompatibilidad con la protección del arbolado correspondiente a las Zonas G1 + G2 + G3. En los planos indicativos se puede ver una opción para su implantación, que alcanza las 31 plazas, incluidas las 2 de carga y descarga en C/ Manuel Pardo.

— Para la Parcela 2, (Escuela), la dotación obligatoria es de 8 plazas. En los planos indicativos se ha dibujado una opción de 9 plazas, incluidas las de carga y descarga en C/ Manuel Pardo.

— La Parcela 3 es una vivienda unifamiliar existente. Cuenta con espacio para 2 vehículos.

Norma general sobre acabados de caminos, accesibilidad y movilidad.

— En lo tocante a los materiales previstos para la realización de caminos interiores y zonas de aparcamientos, se prohíbe expresamente el empleo de acabados asfálticos y bituminosos, en orden a su integración ambiental y protección de la vegetación existente, según los criterios que se exponen a continuación en esta memoria.

— Los proyectos de urbanización asegurarán el cumplimiento de las normas vigentes en materia de accesibilidad y movilidad. No obstante, los caminos trazados a título indicativo, cumplen las condiciones básicas: Ninguno excede el 4% de pendiente y siempre existe un trazado liso, accesible a PMR y sillas de ruedas, de 1,5 m. de anchura.

Impacto sobre el jardín protegido. Tipología de los caminos

Como ya se ha indicado, la prioridad es la protección del jardín. Las estrategias para ello son:

— Todos los caminos se han trazado evitando el arbolado, y por las zonas EL/G3.

— Los únicos caminos trazados en EL/G1 o G2 son sendas exclusivamente peatonales, de 1,5m. de ancho, que van a existir, en cualquier caso, pues los residentes y usuarios caminarán por los jardines libremente. También estas sendas son de acabados drenantes.

— Ningún camino se llevará a cabo eliminando arbolado. Todos pueden esquivar los árboles existentes sin perder funcionalidad.

— Todos los caminos se llevarán a cabo sobre bases de zahorras compactadas, totalmente transpirables, y podrán tener diferentes acabados, pero siempre drenantes, para garantizar que los árboles que puedan flanquear sus laterales reciban la misma precipitación que antes, y sus raíces respiren igual.

— Aseguraremos la accesibilidad para PMR en las sendas centrales de 1,5m. de anchura con la que cuentan todos los caminos. Estas sendas para PMR son también drenantes.

En los Planos Indicativos, especialmente en PI-12, se han dibujado caminos donde es más previsible que se lleven a cabo. La utilidad de ese plano, para este PE, es poner de manifiesto los diferentes usos o tipos (v.g., materiales para aparcamiento o para sillas de ruedas) y si su construcción afectaría a la protección de los jardines.

Criterios de diseño comunes a los acabados de los caminos

1. Solo se emplearán soluciones drenantes, que incluso permitan el crecimiento de gramíneas (hierba natural). Con técnicas drenantes, se asegurará que siempre haya un camino liso y libre de obstáculos de 1,5m. de ancho, para asegurar la movilidad de Personas con Movilidad Reducida (PMR).

2. Se proponen estas soluciones o similares.

a) Zahorras compactadas, confinadas por bordillos de jardinería para evitar su disgregación.

b) Pavimentos minerales drenantes o permeables “duros”, tipo Permosol. Son pavimentos 100% permeables, que se consiguen mezclando áridos triturados pétreos de granulometría controlada, con ligante hidráulico, aditivado con productos naturales, sin arena, con lo que se obtiene una mezcla muy seca y porosa con una permeabilidad del 100% a los líquidos. Una vez extendida la mezcla en el suelo se compacta mediante un rodillo metálico con varias pasadas, para fijar y apelmazar los gránulos pétreos, se cubre con plástico durante 5 días para evitar la rápida deshidratación, se panela en paños de máximo 6x3m, colocando una junta bicónica de neopreno. Pueden pigmentarse en varios colores. El resultado es además antideslizante. Se debe colocar sobre una subbase sólida, nivelada y compactada, (zahorras), y encofrar (encofrado perdido) con madera o metal.

c) Rejillas de hormigón, o completamente ocultas, de plástico, sobre zahorras compactadas, para aparcamientos y zonas de los caminos de mayor tráfico de vehículos.

El uso de los caminos interiores es peatonal, aunque pueden ocasionalmente servir para carga y descarga con vehículo. Todos los vehículos se aparcan en las zonas delimitadas para ello.

Tipos de caminos por usos

Caminos de uso peatonal: Se han representado como caminos de 1,5m. de anchura. Son de uso exclusivo peatonal, aunque podrá pasar también por ellos un vehículo de mantenimiento de jardinería, tipo ATV. Estos cuadriciclos suelen tener una anchura inferior a 1,20m.

Se llevarán a cabo mediante pavimento Mineral Drenante (tipo b/), para asegurar firmeza suficiente para las sillas de ruedas, con bordillo perimetral.

Caminos de uso peatonal y carga-descarga: Se han representado, indicativamente, como caminos de 3-4 m de anchura.

Son peatonales, aunque pueden usarse esporádicamente para carga y descarga de PMR, enfermos, emergencias, etc. No pueden aparcar coches en ellos. Normalmente, los coches han de quedarse en el aparcamiento y desde allí, usarse carritos de menor tamaño para llevar cargas a las unidades residenciales.

Están formados por:

— Una banda central de 1,50m, de pavimento Mineral Drenante (tipo b/).

— Dos bandas laterales de zahorras / jabres compactadas (tipo a/), confinadas con bordillo.

El tramo que lleva desde la puerta de acceso rodado de Carretera de Galapagar hasta la zona de aparcamiento, se forma por:

— Una banda central de 1,50m, de pavimento Mineral Drenante (tipo b/).

— Dos bandas laterales de rejilla de hormigón o plástico, sobre zahorras compactadas (tipo c/), confinadas con bordillo.

Zonas de aparcamiento: Se han representado con una trama de cuadrícula. Se emplearán dos tipos de acabados.

— Zonas de tránsito, con rejilla, sobre zahorra compactada (tipo c/),

— Zonas de estacionamiento con rejilla, sobre zahorras compactadas (tipo c/), encintando el dibujo de las plazas con bordillo enrasado.

— Banda de 1,50 m, de pavimento Mineral Drenante en el área, con tramos hasta puerta de plazas de PMR (tipo b/).

Dotación de plazas de aparcamiento Necesidades del jubilar Villa Rosita

Se ha hecho un estudio de uso del automóvil privado, en la actualidad, con el objeto de saber si es posible compartir vehículos para uso privado. El resultado es que es posible y más sostenible utilizar vehículos compartidos, en cuyo caso la Cooperativa sería la titular de los mismos. También se aspira a que la mayoría sean híbridos o eléctricos.

Este estudio indica que 29 Unidades Residenciales (número máximo posible), pueden funcionar con la siguiente flota:

— 4 U.R. no quieren o no pueden renunciar a un vehículo de uso exclusivo. Creemos que esta situación se producirá también en el futuro.

— 5 U.R. ni tienen vehículo ni conducen. En esta comunidad no hay ninguna persona actualmente en situación de dependencia, por lo que este número se mantendrá constante o aumentará.

— Las otras 20 U.R. podrían compartir vehículos para uso privado, ya que en la actualidad usan los propios de forma muy irregular y escasa. De hecho, la media de uso de estos residentes no alcanza los 10.000 km/año.

Frecuencia de uso y tipo de vehículo

Se estudian tres períodos compatibles o alternativos: Días laborables, Fines de Semana y Meses de Verano + Semana Santa.

Se comprueba que el camino crítico está en la simultaneidad de uso para viajes largos en los meses de verano, y por tanto de vehículos de tipo híbrido, pues los eléctricos todavía hoy no cuentan con puntos de recarga suficientes para este uso. Parecen suficientes entre 4 y 6 vehículos híbridos.

El uso de viajes de fin de semana se reparte a partes iguales entre desplazamientos <100 km, en cuyo destino existe posibilidad de recarga eléctrica, y otros largos donde se necesita un vehículo híbrido. Estas necesidades se cubren con los antes mencionados Vehículos Híbridos.

El uso de vehículos a diario es para recados, compras y pequeños desplazamientos. No han aparecido necesidades para vehículos híbridos en esta categoría de uso en días laborables. Arroja el estudio que son necesarios entre 4-6 vehículos eléctricos para este fin, pero al no solaparse con su uso en verano, pueden destinarse a este capítulo los 4-6 vehículos híbridos. Ya que la mitad de su uso es para trayectos cortos, se considera útil que los vehículos híbridos sean del tipo “enchufable”.

No obstante, hay más demanda y solapes que no quedan cubiertos por los mencionados vehículos, y que se calcula pueden ser cubiertos por 2 vehículos eléctricos.

También se ha considerado que hay la necesidad de contar con un vehículo “sucio”, tipo pick-up, de tracción 4x4, para transporte de cargas sucias (jardinería, construcción, bricolaje), mudanzas y situaciones de emergencia con nieve en la parcela.

También, en un futuro próximo, podría evaluarse la necesidad de una furgoneta para 9 personas y transporte de PMR.

Se estima que una flotilla suficiente de vehículos quedaría así:

Es muy probable que, a los pocos meses de vivir allí, los residentes del Jubilar no contarán con más de 15-20 vehículos privados, pues muchos de ellos ya no tienen ni vehículo ni carnet de conducir. Es esperable que el impacto de vehículos aparcados será inferior al que señala la normativa, como se ha observado en centros similares.

Acceso postal al Jubilar Villa Rosita

Retranqueo de la tapia existente para que en la C/ Manuel Pardo puedan estacionar los vehículos de entrega postal, carga y descarga. Este espacio también actúa como espacio de seguridad para salir peatonalmente a la C/ Manuel Pardo, pues la tapia perimetral en esa calle se ha de mantener, y la calzada muere contra ella.

Dotación obligatoria de plazas del jubilar (Parcela 1)

Según establece el “Informe técnico de propuesta de aprobación inicial” del PE-UE.1, de 26.03.2018, las plazas de aparcamiento son exigibles salvo justificación de manifiesta incompatibilidad con la protección del arbolado correspondiente a las Zonas G1 + G2 + G3.

La Parcela 1, del Jubilar, a estos efectos, tiene un uso asimilable a EQ/7.3. Teniendo en cuenta el Art. 4.2.5.c), calculado en función del Art.4.3.2.E1), considerando 1viv = 1UR, se establece que la dotación mínima sería de 29 Plazas, pues el Jubilar tiene 29 Unidades Residenciales.

Se han dibujado 29 plazas en la zona de aparcamiento a la que se accede desde la Crta. de Galapagar y otras 2 plazas en la zona de carga y descarga (“acceso postal”) de la C/ Manuel Pardo.

NORMATIVA URBANÍSTICA DERIVADA DE LOS INFORMES SECTORIALES

Condiciones urbanísticas derivadas del informe ambiental estratégico

(Resolución del 02.12.2020, de la Directora General de Sostenibilidad y Cambio Climático)

Criterio general

Las presentes condiciones prevalecen, en caso de contradicción o vacío legal, sobre las Ordenanzas contenidas en los Apdos. 2.03 y 2.04, del TOMO 2, y sobre las determinaciones gráficas de los Planos normativos.

Condiciones ambientales. Con carácter vinculante.

a) Conservación de los dos accesos a la finca desde la ctra. de Galapagar, en cuanto las pilastras de piedra y puertas de forja.

b) Conservación de la tapia perimetral, aunque pueden llevarse a cabo nuevos accesos que no menoscaben su valor ambiental.

c) Medidas correctoras para minoración del impacto acústico en cumplimiento de la Ley 37/2003:

c1) De acuerdo con el Estudio Acústico que consta en el Expediente, en la fachada a la ctra. de Galapagar, se deberá incrementar la altura del muro existente hasta una altura total de 3,5 m y una longitud de 26 m, en una posición simétrica respecto del eje de la fachada del edificio dotacional afectado.

c2) Para el recrecido se recomienda un material traslúcido permeable al sol y a vistas, que cause el menor impacto visual posible. La solución final deberá ser aprobada previamente por el Ayuntamiento, prevaleciendo el criterio de conservación del valor ambiental de la tapia existente según el Apdo.2.1.b).

c3) Asimismo, previo informe favorable de los SSTT, podrán reducirse la altura y longitud citadas en función de las características finales del edificio docente en cuanto dimensiones y medidas acústicas propias que se justifiquen en el proyecto que obtenga la preceptiva licencia. Incluso podrán establecerse otras medidas acústicamente equivalentes a las señaladas en el Estudio Acústico.

c4) En todas las áreas acústicas delimitadas se deberán cumplir con los valores objetivos de calidad acústica aplicables de acuerdo con el Real Decreto 1367/2007, de 19 de octubre, por el que se desarrolla la Ley 37/2003, del ruido.

d) Condicionantes establecidos por los organismos consultados en el procedimiento de EAE: En el caso de las instalaciones sometidas al Real Decreto 9/2005, de 14 de enero, por el que se establece la relación de actividades parcialmente contaminantes del suelo y los criterios y estándares para la declaración de suelos contaminados, tanto la implantación de nuevos establecimientos como su clausura se someterán a lo dispuesto en el Art.3.4 del mencionado Real Decreto.

e) En cumplimiento de la Ley 8/2005, de 26 de diciembre, de Protección y Fomento del Arbolado Urbano de la Comunidad de Madrid.

e1) En el caso de que previamente a la ejecución del PE, es decir, al desarrollo edificatorio (con su p/p de urbanización), se pretenda el apeo completo o parcial del arbolado en mal estado, o considerado como especies alóctonas invasivas, deberá completarse el Inventario de Arbolado que consta en el PE, definiendo la edad probable y el diámetro de los ejemplares a nivel del suelo, estando condicionado dicho apeo al informe favorable de los servicios técnicos municipales de medio ambiente.

e2) En el caso de que el apeo de ejemplares esté vinculado a una licencia de obras, de procederá a presentar las características definidas en el apdo. anterior, para informe de medio ambiente, con independencia de la propuesta de tala de los ejemplares no protegidos por el PE, a efectos del depósito del AVAL necesario para garantizar su reposición por valor equivalente, como corresponde a la tramitación habitual de todas las Obras Mayores en el Municipio, en aquellos casos en los que dicha tala (arranque o abatimiento) sea la única alternativa viable. El autor de la tala deberá acreditar ante el órgano municipal competente el número, la especia, la fecha y el lugar en que se haya llevado a cabo la plantación de conformidad con la autorización de la tala, informando, durante el año siguiente a la plantación del nuevo árbol, sobre su estado y evolución.

e3) Se procederá al trasplante (a salvo de que se justifique su imposibilidad por los técnicos municipales de medio ambiente), de todos los ejemplares de cualquier especie arbórea con más de 10 años de antigüedad o veinte centímetros de diámetro de tronco a nivel del suelo, que se vean necesariamente afectados por las obras de reparación o reforma de cualquier clase, o por la construcción de infraestructuras.

f) En cumplimiento del Decreto 170/1998, de 1 de octubre, sobre gestión de las infraestructuras de saneamiento de aguas residuales de la Comunidad de Madrid.

f1) Respecto de la capacidad de depuración del agua residual, el caudal del vertido de las aguas estrictamente residuales generadas en el ámbito de la UE- 1, no será superior a 28,4 m3día. Los vertidos podrán ser tratados en la EDAR Galapagar-Torrelodones.

f2) Respecto de la red de alcantarillado de la actuación, y sobre las conexiones a realizar en le red de alcantarillado municipal, de acuerdo con el Estudio de Diagnosis y Plan Director como a los estudios y comprobaciones realizados por el Canal de Isabel II, se deberá cumplir lo siguiente:

— Únicamente se permitirá la conexión a la red municipal de las aguas negras generadas por la actuación.

— Las aguas de lluvia generadas en el interior de la actuación deberán ser gestionadas mediante Sistemas Urbanos de Drenaje Sostenible (SUDS) que deberán ser proyectadas para un periodo de retorno de 10 años.

— En el caso de que se prevea la conexión de los vertidos generados por alguna de las edificaciones previstas en el Colector de Torrelodones del Sistema de Saneamiento “Galapagar-Torrelodones”, gestionado por el Canal de Isabel II S.A, ésta deberá ser autorizada previamente por esta empresa pública con la tramitación por el promotor del informe en cumplimiento del artículo 8 del Decreto 170/1998.

f3) Según la información oficial disponible de la Confederación Hidrográfica del Tajo, no existe dentro del ámbito ningún cauce o arroyo, a efectos de la protección del Dominio Público Hidráulico. No obstante, a efectos de la posible explotación de los pozos existentes como agua de riego, según el Estudio Hidrogeológico del Plan Especial, se deberá contar con la autorización expresa de dicho Organismo.

g) Otras medidas de interés medioambiental para las obras de urbanización:

g1) Durante las obras de urbanización el arbolado localizado en el interior del ámbito deberá ser protegido si fuese necesario, mediante tablones, vallado o cualquier otro sistema que sea efectivo.

g2) Para garantizar el éxito de los trasplantes, estos se llevarán a cabo en épocas climáticamente favorables y la plantación en el lugar definitivo se realizará inmediatamente después de sacar el árbol.

g3) Con objeto de minimizare la compactación de los suelos, el paso de vehículos y maquinaría se restringirá a los caminos existentes. La zona de ocupación se limitará al mínimo imprescindible.

Se emplearán las mejores técnicas disponibles para minimizar los daños a la vegetación. En particular, se utilizará la maquinaria de obra de las menores dimensiones posibles.

g4) Los pavimentos de aceras y caminos que se ejecuten en el interior del ámbito serán de materiales porosos o permeables, de manera que permitan la infiltración de la escorrentía.

Con carácter de recomendación:

a) Por razones de sostenibilidad ambiental se procurará recuperar los materiales más nobles o destacados, procedentes de la demolición de las antiguas viviendas Villa Clotilde, Villa Constanza y Vivienda “Chófer”, como macizos y sillares de granito, ladrillos macizos de tejar, vigas de madera en buen estado, etc.

b) Conservar los tres aljibes existentes, por tratarse de elementos consolidados construidos de forma tradicional y que por lo tanto aportan valor ambiental.

c) En relación con la Ley 8/2005, de Protección y Fomento del Arbolado Urbano, En el caso de que los proyectos de desarrollo del Plan Especial, incorporen la realización de nuevas zanjas para infraestructura de cualquier clase (saneamiento, abastecimiento, electricidad, accesos, comunicaciones, energía, etc), se procurará su ejecución en el exterior del ámbito. En el caso de ser imprescindible su localización en el interior del ámbito, se procurará que esta tenga lugar en las propias zonas que se destinen a los pavimentos y aceras de acceso previstos, de manera que se evite el paso por las áreas ajardinadas.

d) En relación con la minoración del ruido, se sugiere el aislamiento acústico de las fachadas de los edificios más expuestos, de manera que se reduzcan los niveles de ruido en las zonas habitables del interior de los edificios, en cumplimiento de los valores objetivo de conformidad con la tabla B del Anexo II del Real Decreto 1367/2007.

e) En relación con la red de alcantarillado, los vertidos se realizarán preferentemente a la red municipal que discurre por la calle Manuel Pardo, si bien la decisión final corresponderá al Ayuntamiento, en función de los informes técnicos pertinentes sobre la viabilidad de la conexión.

Condiciones urbanísticas derivadas del Informe de la Dirección General de Vivienda y Rehabilitación/Informe del 18/09/2020

Condiciones con carácter de recomendación:

a) Se sugiere la continuidad en el frente de la c/ Eduardo Costa con el muro de cerramiento existente en la c/ Manuel Pardo, de modo que sin renunciar a la cesión obligatoria señalada en las NNSS y en el Plan Especial, se mantuviera en dicho frente el mismo principio de conservación.

b) En la urbanización interior, sería recomendable incluir los caminos existentes, entre ellos el que unía la edificación principal con la puerta de entrada desde la Ctra. de Galapagar.

c) En la medida de lo posible, siempre que las normas asociadas a los usos previstos lo permitan debería evitarse la ejecución de un vallado que plasme físicamente la división de las parcelas propuestas.





Lo que se hace público para general conocimiento.

Torrelodones, a 21 de julio de 2021.—El concejal-delegado de Urbanismo, David Moreno Fernández.

(02/24.328/21)

Nota: El contenido del texto de la disposición que aquí se muestra no es necesariamente exacto y completo. Únicamente la disposición publicada con firma electrónica, en formato PDF, tiene carácter auténtico y validez oficial.

Sección 3.10.20T: III. ADMINISTRACIÓN LOCAL AYUNTAMIENTOS

Madrid Comunidad Digital
Código de Verificación Electrónica (CVE): BOCM-20210803-68