Boletín Oficial de la Comunidad de Madrid - Núm 297
Sección 3.10.20A: III. ADMINISTRACIÓN LOCAL AYUNTAMIENTOS
Código de Verificación Electrónica (CVE): BOCM-20211214-58
Páginas: 19
III. ADMINISTRACIÓN LOCAL
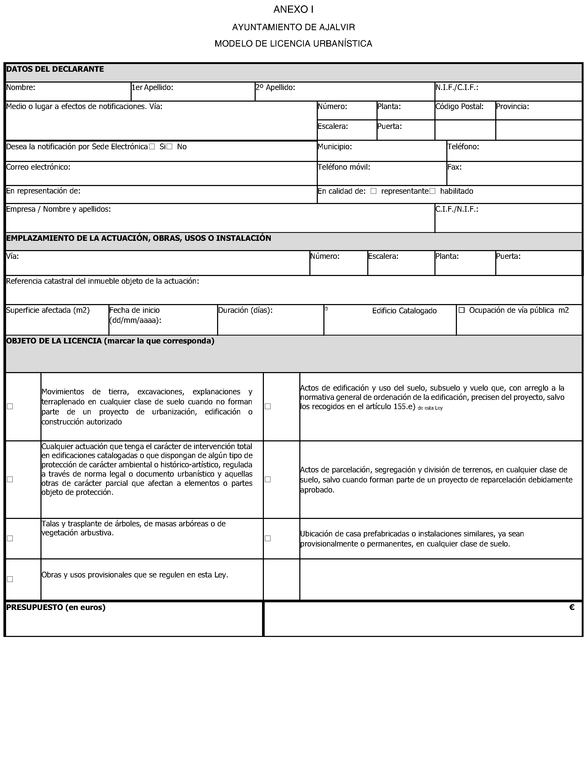
AYUNTAMIENTO DE AJALVIR
ORGANIZACIÓN Y FUNCIONAMIENTO

