Boletín Oficial de la Comunidad de Madrid - Núm 239

Fecha del Boletín 
07-10-2022

Sección 3.10.20M: III. ADMINISTRACIÓN LOCAL AYUNTAMIENTOS


Código de Verificación Electrónica (CVE): BOCM-20221007-67

Páginas: 7


III. ADMINISTRACIÓN LOCAL

AYUNTAMIENTO DE MÓSTOLES

URBANISMO

67
Móstoles. Urbanismo. Plan especial

La Corporación Pleno, en la sesión celebrada el día 13 de julio de 2022, adopto, entre otros, el siguiente acuerdo:

«Primero: Aprobar definitivamente el documento del Plan Especial para la autorización como usos compatibles en edificio exclusivo en la parcela situada en la calle Júpiter, número 1, de Móstoles, los siguientes: Del uso genérico “estancia y residencia”: Hotelero. Del uso genérico “abastecimiento y consumo”: Restaurante y Comercial PC-3. Centros de servicios en edificio exclusivo con los siguientes usos permitidos: Pequeño y mediano comercio y Hostelería y Ocio.

Segundo.—Publicar esta aprobación definitiva en el BOLETÍN OFICIAL DE LA COMUNIDAD DE MADRID en los términos previstos en el artículo 66 de la LSCM y notificar el Acuerdo a los interesados, al Área de Patrimonio y a la Concejalía de Hacienda».

Determinaciones urbanísticas del Plan Especial

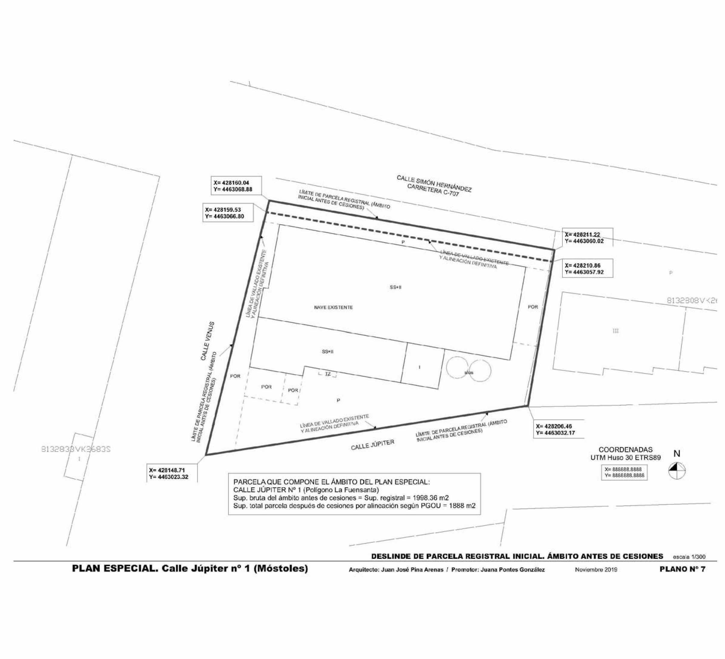
El ámbito se corresponde con la parcela calle Júpiter, número 1, 28931 Móstoles (Madrid).

Referencia catastral 8132807VK2683S0001IM y Finca número 2654 del Registro de la Propiedad número 2 de Móstoles, en la que consta una superficie de suelo de 1.998,36 m2.

El Objeto del Plan Especial en la parcela de calle Júpiter, número 1, se redacta para la autorización de los siguientes usos, como uso compatible en edificio exclusivo:

Del uso genérico “estancia y residencia”: Hotelero.

Del uso genérico “abastecimiento y consumo”: Restaurante y Comercial PC-3.

Centros de servicios en edificio exclusivo con los siguientes usos permitidos: Pequeño y mediano comercio y Hostelería y Ocio.

Parcela inicial: 1.998.36 m2.

Parcela neta resultante Ord. ZU-AE-1_Jupiter 1: 1.888 m2.

Cesión urbanística obligatoria de viario público: 110,36 m2.

Edificabilidad uso genérico: 1.998,36 x 1,5 m2/m2 = 2.997,54 m2.

De la homogenización para los usos contemplados por el presente PE, resultan los siguientes coeficientes de edificabilidad:

Hotelero: 1,376 m2/m2.

Restaurante: 0,829 m2/m2.

Comercial PC-3: 0,829 m2/m2.

Centros de servicios en edificio exclusivo con los siguientes usos permitidos: Pequeño y mediano comercio y Hostelería y Ocio: 0,829 m2/m2.

El Plan General de Ordenación Urbana de Móstoles autoriza en esta localización, como uso compatible en edificio exclusivo la implantación de los usos anteriormente descritos, previa la elaboración de un Plan Especial que garantice que el diseño y desarrollo propuestos es compatible funcionalmente con el entorno.

Por tanto procede la tramitación del Plan Especial de Mejora Urbana para la autorización como uso compatible en edificio exclusivo, de los usos anteriormente descritos en la parcela situada en la calle Júpiter, número 1.

Alineación y pertinencia del Plan Especial

El Plan General de Ordenación Urbana de Móstoles, en su plano número 9, hoja 47, de Calificación Pormenorizada y Alineaciones, modifica la alineación a la calle Simón Hernández (carretera a Fuenlabrada C-707) ensanchándola con la intención de mejorar esta vía, importante canal de entrada a Móstoles. Además, en dicho plano se aprecia cómo los linderos de la parcela de referencia a las calles Júpiter y Venus coinciden con el límite del conocido como Polígono 10 (La Fuensanta II). La alineación definida en el PGOU se ha concretado en el Proyecto de Prolongación de la calle Simón Hernández a carretera de Fuenlabrada, entre las calles Venus y Urano, aprobado por la Junta de Gobierno Local celebrada el día 2 de octubre de 2017 (expediente: U/011/OBRA/2017/04).

Ordenanza de aplicación

Determinaciones de Volumen:

Alineaciones y rasantes: Serán las reflejadas en el plano de alineaciones del presente Plan Especial, en el cual quedan geométricamente definidas.

Altura máxima de la edificación: La altura máxima será de 12 m. Se exceptúan los elementos del sistema productivo que para su correcto funcionamiento requieran mayor altura.

Edificabilidad: Será la resultante de aplicar un coeficiente de 1.5 m2/m2 sobre la parcela neta inicial, entendiéndose por parcela neta inicial la anterior a la ordenación del Plan General, de forma que, si este establece nuevas cesiones, como es el caso, la superficie de las mismas generan aprovechamiento. En el ámbito de aplicación de este Plan Especial la superficie neta inicial será de 1998.36 m2, por ser esta la superficie que consta en el Registro de la Propiedad y anterior al cambio de alineaciones impuesto por el Plan General y pormenorizado en este Plan Especial.

Cuando el uso sea diferente del Industrial Pequeña y Mediana Empresa, la edificabilidad se deduce de la aplicación de los coeficientes de homogeinización establecidos en el Área Homogénea, quedando del siguiente modo para los usos permitidos que quedan autorizados con la aprobación de este Plan Especial:

— Del Uso genérico Estancia y Residencia:

• Uso pormenorizado Hotelero, al ser un uso permitido se ha adoptado el establecido para el Área Homogénea colindante (AH- 9.2), en la que sí está definido explícitamente:

- Coeficiente de homogeinización: 1.09.

- Edificabilidad: 1.376 m2/m2 (1.5/1.09).

— Del Uso genérico Abastecimiento y Consumo:

• Uso pormenorizado Restaurante:

- Coeficiente de homogeinización: 1.81.

- Edificabilidad: 0.829 m2/m2 (1.5/1.81).

• Uso pormenorizado Comercial PC-3:

- Coeficiente de homogeinización: 1.81.

- Edificabilidad: 0.829 m2/m2 (1.5/1.81).

— Centros de servicios en edificio exclusivo con los siguientes usos permitidos:

• Pequeño y mediano comercio:

- Coeficiente de homogeinización: 1.81.

- Edificabilidad: 0.829 m2/m2 (1.5/1.81).

• Hostelería y Ocio:

- Coeficiente de homogeinización: 1.81.

- Edificabilidad: 0.829 m2/m2 (1.5/1.81).

En el caso del resto de usos permitidos por la Ordenanza de aplicación en el ámbito del presente Plan Especial, se aplicarán de igual modo los coeficientes de homogeinización que establece el Plan General de Móstoles para el Área Homogénea 9.1, y que son:

• Pequeña y mediana industria: 1.

• Gran industria: 0.90.

• Almacenes: 0.86.

• Comercio, Ocio y Hostelería: 1.81.

• Terciario-oficina: 1.09.

• Comercio industrial: 1.27.

Nota 1: Todos los usos situados en planta baja se consideran complementarios del principal y, en consecuencia, con el mismo coeficiente de homogeinización. Para los usos permitidos en edificio exclusivo los coeficientes de homogeinización serán los anteriores.

Frente mínimo de parcela: El frente mínimo de parcela será de 10 m.

Ocupación máxima: La ocupación máxima será del 70 por 100.

Parcela mínima: La parcela mínima será de 800 m2.

Retranqueos: Serán, como mínimo, de 5 m a vía pública y 3 m al resto de linderos. Salvo edificaciones adosadas en que se suprimen los retranqueos laterales.

Además de en parcela independiente, los usos admitidos en esta Ordenanza podrán ubicarse en minipolígonos y multiempresas siguiendo las condiciones que se establecen en la Ordenanza ZU-AE-1 del PGOU de Móstoles.

Para el resto de las determinaciones de volumen se estará a lo dispuesto en las Normas Urbanísticas Generales.

Nota 2: Se estará a lo dispuesto por el artículo III.3.4 de las Normas Urbanísticas Generales del PGOU sobre medición de la superficie computable a efectos de edificabilidad: “La superficie computable a efectos de edificabilidad será la suma de la superficie construida de todas las plantas (incluidas las entreplantas), salvo las situadas bajo rasante cuando se destinen a usos de dotación obligatoria de plazas de aparcamiento, trasteros o servicios e instalaciones del edificio y las azoteas y terrazas de la última planta no cubiertas, salvo indicación en contrario de la Norma Particular.

Se descontarán los huecos de ascensor, instalaciones de superficie mayor de 0,5 m2, los ojos de escaleras y un hueco o tramo de escaleras en edificios de más de dos plantas y aquella superficie de altura libre inferior a 1,80 m bajo la losa de la escalera en edificios de dos plantas o más. No computarán edificabilidad las zonas con altura inferior a 2,20 m en todas sus partes que resulten inutilizables para cualquier otro uso, las cubriciones de piscinas con sistemas desmontables, el sobreancho de los cerramientos originado por el empleo de técnicas, soluciones o materiales encaminadas al ahorro energético o al empleo de energías alternativas y, en las zonas de pequeña industria en suelo urbano las instalaciones, almacenes y servicios situados en entreplantas así como los usos complementarios asimismo situados en entreplantas sin que en ningún caso la edificabilidad real supere la resultante de aplicar un coeficiente de 1,5 m2/m2 sobre la parcela neta.

Determinaciones de Uso y Destino de la Edificación y el Suelo:

Uso genérico: se mantiene lo que establece al respecto la Ordenanza ZU-AE-1.

Usos pormenorizados: se mantiene lo que establece al respecto la Ordenanza ZUAE- 1.

Todos los usos cumplirán las determinaciones que para los mismos se establecen en las Normas Urbanísticas Generales del Plan General.

Salvo en el caso de los edificios para multiempresas, se entiende que en cada nave solo se admite una actividad titular que deberá estar contenida en los usos permitidos que a continuación se describen. No obstante, siendo la actividad industrial compleja, se admite bajo un mismo titular la simultaneidad de actividades complementarias necesarias o subsidiarias de la principal con el límite general del 50 por 100 de la superficie construida y que pueden ser: comedores y guarderías de empresa, áreas de exposición y venta, talleres de enseñanza industrial, almacenes dispensarios y enfermerías, oficinas, aparcamientos, áreas de carga y descarga, etc.

Si por necesidades a justificar (competencias sectoriales) se precisara la apertura de una actividad independiente, sería viable, siempre que no superara el 10 por 100 de la superficie construida y condicionando su existencia a la de la titular general de la nave.

Usos en el espacio de retranqueos:

— A la alineación exterior:

• Permitido: Carga y descarga, ajardinamiento, aparcamiento, paso de vehículos, garitas de vigilancia y control.

• No permitido: Almacenamiento, instalaciones auxiliares, construcciones auxiliares, depósitos de residuos no controlados.

— A linderos laterales y trasero:

• Permitido: Carga y descarga, ajardinamiento, aparcamiento, paso de vehículos, instalaciones auxiliares y almacenamiento. Las instalaciones auxiliares y el almacenamiento deberán dejar un paso libre en superficie de 3 m de ancho en planta para permitir el paso a los camiones de bomberos.

• No permitido: Obstaculizar el paso de vehículos, depósito de residuos no controlados, construcciones auxiliares.

Asimismo se permite en el espacio de retranqueo la instalación de centros de transformación subterráneos.

Dotación de plazas de aparcamiento:

Se reservará en el interior de la parcela, bien bajo rasante o sobre rasante una dotación de plazas de aparcamiento que no será inferior al mayor de estos estándares:

— Estándar específico por uso, según artículo VIII.5 y siguientes de las Ordenanzas Generales PGOU de Móstoles y de la Ordenanza Particular ZU-AE-1

— Estándar general mínimo, según artículo 36.6.c) de la LSCM/01, del Suelo de la Comunidad de Madrid: 1.5 plazas por cada 100 m2 construidos.

En referencia al cumplimiento del Decreto 170/1998, de 1 de octubre, sobre gestión de las infraestructuras de saneamiento de aguas de la Comunidad de Madrid:

— Respecto a la depuración de aguas residuales:

Con los datos contenidos en la documentación presentada y atendiendo a las dotaciones de las vigentes Normas para Redes de Saneamiento de Canal de Isabel II (versión 3. 2020), el vertido generado resultante del Plan Especial en el Ámbito es de 18.8 m3/día.

La parcela objeto del Plan Especial está situada en la cuenca vertiente a la EDAR de Arroyo del Soto, que podrá tratar el caudal de vertido generado por la parcela.

— Respecto a la depuración de aguas residuales:

En la actualidad, la parcela del Plan Especial está conectada a la red de alcantarillado de tipo unitario existente en las inmediaciones y gestionada por Canal de Isabel II, S.A.

Una vez aprobado definitivamente el Plan Especial, el promotor de la actuación deberá ponerse en contacto con el Área de Gestión Comercial de Canal de Isabel II, S. A., para la contratación y ejecución de las acometidas necesarias o, en su caso, adecuación de las acometidas existentes.

En referencia al cumplimiento de la Ley 37/2003, de 17 de noviembre, del Ruido, y los Reales Decretos que la desarrollan:

— La ubicación, orientación y distribución interior de los edificios destinados a los usos más sensibles desde el punto de vista acústico se planificará con vistas a cumplir los niveles de inmisión en los mismos, adoptando diseños preventivos y suficientes distancias de separación respecto a las fuentes de ruido más significativas, y en particular, el tráfico rodado.

— Se aplicará el Real Decreto 1371/2007, de 19 de octubre, por el que se aprueba el documento básico DB-HR Protección frente al ruido, del Código Técnico de la Edificación.

— Si en fases posteriores se produjeran modificaciones que alteraran las condiciones acústicas del ámbito o que afectaran a las medidas correctoras propuestas, se adaptará el estudio acústico a la nueva situación, con la adopción, en su caso, de nuevas medidas correctoras.

Protección de la calidad de los suelos:

— En el caso de la las instalaciones sometidas al Real Decreto 9/2005, de 14 de enero, por el que se establece la relación de actividades potencialmente contaminantes del suelo y los criterios y estándares para la declaración de suelos contaminados, tanto la implantación de nuevos establecimientos como su clausura se someterán a los dispuesto en el artículo 3.4 del mencionado Real Decreto.

Condiciones para el arbolado urbano:

— Deberán cumplirse las determinaciones de la Ley 8/2005, de 26 de diciembre, de Protección y Fomento del Arbolado Urbano de la Comunidad de Madrid, donde se recoge la prohibición de tala y podas drásticas e indiscriminadas, las obligaciones de los propietarios de arbolado urbano, la obligación de redactar un inventario municipal de arbolado urbano y un plan de conservación del mismo, y donde se recogen las condiciones para nuevas plantaciones.

— Para el arbolado urbano se alternarán diferentes especies con el fin de mitigar posibles afecciones de plagas, procurando en todo caso que sean resistentes y de fácil conservación.





Móstoles, a 5 de septiembre de 2022.—La concejala-delegada de Presidencia y Desarrollo Urbano, Marisa Ruiz González.

(02/17.839/22)

Nota: El contenido del texto de la disposición que aquí se muestra no es necesariamente exacto y completo. Únicamente la disposición publicada con firma electrónica, en formato PDF, tiene carácter auténtico y validez oficial.

Sección 3.10.20M: III. ADMINISTRACIÓN LOCAL AYUNTAMIENTOS

Madrid Comunidad Digital
Código de Verificación Electrónica (CVE): BOCM-20221007-67